Forming part of ‘The Crescent’ at Bangour Village Estate, The Hughes is a four bedroom, detached house by Ambassador Homes. Set in 215 acres of majestic woodland in this spectacular location, this iconic redevelopment pays homage to the emotive history of the area, whilst bringing modern living standards to a bespoke collection of homes, with this property being ideal for growing families.
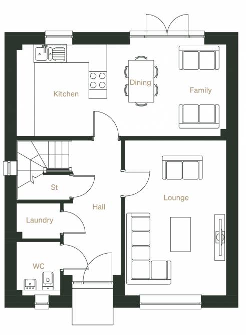
The Hughes is an ideal detached four bedroom family home, perfect for a busy family. With a versatile layout, the ground floor accommodation comprises a spacious formal living room, cloakroom WC and handy laundry room to ensure maximum convenience.
The open plan kitchen and living-dining room is the heart of this home and benefits from French doors with additional fixed light windows that allow additional light to flood in. The studio designed kitchen includes a social cooking peninsula, and a full suite of high-quality integrated Electrolux appliances.
On the first floor there is a family bathroom with separate shower enclosure, and additional dedicated storage space to the landing. The principal bedroom suite is enhanced by a set of built-in fitted wardrobes, along with an en-suite with double shower enclosure. Three additional good-sized bedrooms complete the first floor of this unique family home.
Please note, CGIs/ pictures are representative of an Ambassador home, but details may vary depending on house type.
There are private gardens to the front and rear, plus a driveway providing off street parking.
A factoring agent will be appointed to maintain the communal grounds and the cost of this is to be confirmed.
Viewing Details
By appt through Neilsons 0131 625 2222






